 
	 
	Vítejte u jedinečné příležitosti – nabízíme k prodeji rodinný dům, který spojuje komfort moderního bydlení, klid venkovské lokality a rychlou dostupnost do hlavního města. Tato nemovitost se nachází v obci Libeř, část Libeň (okres Praha-západ) a již na první pohled působí dojmem kvalitní, promyšlené a výjimečné stavby.
Představte si místo, kde máte vše – velký rodinný dům s obytnou plochou 270 m², krásnou zahradu o rozloze 1 718 m², vlastní bazén, jezírko, garáž i velkou dílnu, kterou lze přeměnit na další obytný prostor. K tomu moderní technologie – fotovoltaika a tepelné čerpadlo – které zajišťují úsporný provoz a ekologický způsob života.
To vše v klidné obci, kde máte jen jednoho přímého souseda, přitom do centra Prahy se dostanete za 18 minut.
Rodinný dům byl kolaudován v roce 2010 a je postaven z kvalitních materiálů, díky čemuž je ve výborném technickém stavu a nevyžaduje žádné další investice.
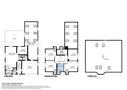
Přízemí:
prostorná vstupní chodba,
koupelna se sprchovým koutem a WC,
vstup do garáže (30 m²) pro dvě auta,
obývací pokoj s kuchyňským koutem a jídelnou – s přímým vstupem na zahradu,
krbová kamna – pro atmosféru i úsporu energií,
pracovna s možností využití jako kancelář či pokoj pro hosty,
přímý vstup z pracovny do dílny (80 m²), která je nyní využívána jako truhlárna.
Podkroví:
čtyři samostatné pokoje,
hlavní ložnice s vlastní šatnou,
koupelna s vanou a WC,
technická místnost,
přístup na půdu – ideální pro sezónní věci či další skladování.
Zahrada o výměře 1 718 m² je rovinatá, oplocená a nabízí dokonalou kombinaci užitku a odpočinku. Najdete zde:
venkovní bazén s technickým zázemím,
okrasné jezírko s rybami,
okrasnou skalku, vzrostlé ovocné a okrasné stromy,
zahradní domek na nářadí,
dostatek prostoru pro posezení, pergolu nebo dětské hřiště.
Pozemek je kompletně oplocený, vjezd zajišťují samonosná pojezdová vrata.
Tento dům jde s dobou – kromě kvalitní stavby využívá i moderní technologie, které zajišťují úsporný provoz a komfortní bydlení.
Fotovoltaické panely – výrazná úspora nákladů na energie, možnost ukládání do baterií.
Tepelné čerpadlo – ekonomické a ekologické vytápění domu.
Krbová kamna – romantika i funkční doplněk k vytápění, ideální pro chladné večery.
Součástí domu je dílna o rozloze 80 m², která je nyní využívána jako truhlárna. Je přístupná přímo z pracovny v přízemí, má vlastní vstup a velkorysé prostory.
Možnosti využití:
přestavba na další obytnou jednotku,
ateliér, studio, fitness,
podnikání – řemesla, e-shop, servis, kanceláře.
Obec Libeř (část Libeň) je malebná lokalita na okraji Prahy-západ. Nabízí klidné prostředí, minimum sousedů a krásnou přírodu. Zároveň je však dojezdová vzdálenost do centra Prahy jen 18 minut.
V obci a okolí naleznete základní občanskou vybavenost – školy, školku, obchody, služby. Milovníci přírody ocení okolní lesy, cyklostezky, turistické trasy i možnosti pro sport a relaxaci.
Tento dům není jen stavba – je to životní styl.
Ráno si můžete zaplavat ve vlastním bazénu.
Odpoledne posedět na terase a sledovat jezírko s rybami.
Večer zatopíte v krbových kamnech a vychutnáte si domácí pohodu.
A přitom jste jen pár minut od Prahy.
Dispozice: 5+kk
Obytná plocha: 270 m²
Dílna: 80 m² (možnost přestavby)
Garáž: 30 m²
Zahrada: 1 718 m²
Kolaudace: 2010
Technologie: fotovoltaika, tepelné čerpadlo, krbová kamna
Voda: vlastní vrt + možnost napojení na obecní vodovod
Odpad: jímka
Stav: výborný, ihned k nastěhování
Součástí prodeje: vybavení domu
* Moderní rodinný dům 5+kk ve výborném stavu
* Garáž pro dvě auta přímo v domě
* Velká zahrada s bazénem a jezírkem
* Fotovoltaika, tepelné čerpadlo, krbová kamna
* Dílna 80 m² – možnost podnikání nebo bydlení
* Soused pouze z jedné strany – soukromí a klid
* Skvělá dostupnost do Prahy – 18 minut autem
Tato nemovitost je výjimečná a na trhu dlouho nezůstane. Pokud hledáte kombinaci klidu, prostoru, moderního bydlení a dostupnosti Prahy, právě jste ji našli.
Kontaktujte nás a domluvte si osobní prohlídku – rádi Vám dům ukážeme a představíme jeho jedinečné možnosti.
Technické informace
plocha pozemku: 2175 m2
obytná plocha domu: 270 m2
užitná plocha domu: 380 m2
budova: samostatně stojící
počet NP: přízemí + podkroví
voda: vlastní vrtaná studna +vodovod na hranici pozemku ( možnost připojení)
elektro: fotovoltaické panely, 220/380 V
kanalizace: jímka
topení: fotovoltaické panely, tepelné čerpadlo+ krbová kamna
parkování: vlastní garáž v domě 30 m2 pro dvě auta
dílna 80 m2 - v současnosti truhlárna
energetická třída: A - mimořádně úsporná
 
 
kolaudace: 2010
náklady: 5200 Kč záloha na el. energii včetně spotřeby dílny a bazénu
vývoz žumpy cca 2800 Kč/ 1x za 6 týdnů
stav: velmi dobrý
* Další informace sdělíme na osobní prohlídce. Stavební dokumentaci zašleme na vyžádání.
KUPNÍ CENA 24.500.000 Kč


Lokalizace: Obec Libeř se nachází ve Středočeském kraji, v okrese Praha-západ, přibližně 18 km jižně od Prahy. Je součástí širšího správního obvodu obcí s rozšířenou působností (ORP) Černošice a pověřeného obecního úřadu Jílové u Prahy.
Části obce: Libeř se skládá ze dvou částí: Libeř a Libeň. Část Libeň leží asi 2 km severozápadně od centra Libeře. Každá část má své vlastní katastrální území (Libeř a Libeň u Libeře).
Počet obyvatel: K roku 2025 zde žije přibližně 1 600 obyvatel. V samotné části Libeň žilo v roce 2021 asi 683 obyvatel.
Rozloha: Celková rozloha obce je 13,63 km². Katastrální území Libeň u Libeře má rozlohu 5,79 km².
Nadmořská výška: Centrum obce se nachází v nadmořské výšce 302 m n. m.
Dopravní dostupnost: Obec je dostupná silniční sítí a nachází se v dobré dojezdové vzdálenosti od Prahy, což je klíčové pro rezidenční nemovitosti.
V obci se nachází mateřská škola.
Mezi pamětihodnosti patří gotický Kostel sv. Jiljí ze 14. století.
V obci Libeň protéká Libeňský potok a nachází se zde návesní rybník.
PSČ: 252 41 (pro obě části obce).
Obecní úřad: Libeř 35, 252 41 Libeř.
Oficiální web: www.liber.cz.
Domluvení termínu prohlídky
Domluvte si s makléřem termín prohlídky, který Vám vyhovuje.
Prověření bonity
Budete hradit z vlastních zdrojů nebo pomocí hypotečního úvěru?
Rezervace
Po prověření bonity podepíšeme rezervační smlouvu, uhradíte rezervační zálohu a budete mít čas na vyřízení financování.
Kupní smlouva a úschova financí
Jakmile budete mít zajištěny finance, můžeme přistoupit k podpisu kupní smlouvy a smlouvy o advokátní úschově financí.
¨
Katastr nemovitostí
Návrh na vklad vlastnického práva vložíme do KN po zaslání celkové kupní ceny do advokátní úschovy. Poté běží lhůta 20+x dnů
Jste novým majitelem
Jakmile budete na LV zapsán(a) jako nový majitel, zašle advokát finance z advokátní úschovy ve prospěch bankovního účtu prodávajícího.
Předání nemovitosti
Společně se domluvíme na termínu předání nemovitosti a zapsání stavů měřidel do předávacího protokolu.
Přepis energií
Zajistím za Vás přepis elektrické energie a plynu u ČEZ nebo innogy.
Tak neváhejte a zavolejte, napište nebo vyplňte kontaktní formulář
a objednejte si prohlídku!
ONDŘEJ ŠPAČEK - realitní makléř
+420 777 333 359

Jmenuji se Ondřej Špaček a téměř celý život bydlím v České Lípě. Znám to tu, mám to tady rád a pracuji tady. V realitách se pohybuji od roku 2007. Předtím jsem dělal všechno možné v mnoha oborech ale i mé předchozí pracovní aktivity byly spojené s úctou a profesionálním přístupem ke klientům.
Práce realitního makléře mě naplno pohltila, skutečně mě baví a snažím se ji odvádět vždy na špičkové úrovni. Bez vyjímky, každý den. Při práci na zakázkách využívám profesionálního fotografa, točím videoprohlídky, připravuji vlastní webové stránky nemovitosti, pracuji na sociálních sítích.. vše s jasným cílem. Prodat vaší nemovitost za co nejvyšší cenu k vaší plné spokojenosti.
Proč vznikly tyto stránky?
Abych zde prezentoval, že když dva dělají totéž, nikdy to není totéž. Je všeobecně známo, že rozdíl mezi makléři je řekněme nemalý. Prosím, přečtěte si některé mé tipy a články. Věřím, že vám tyto informace pomohou v rozhodování, a že si pro prodej nemovitosti zvolíte tu správnou cestu.
Za každým prodejem nemovitosti se totiž skrývá lidský příběh. A to je důvod, proč by nikdo neměl tak důležitý životní krok podceňovat. Ani prodávající, ani makléř.
Záleží mi na odvedení špičkové práce a na spokojenosti klienta. A dbám na svém dobrém jménu a pověsti. Za mě pak hovoří reference spokojených klientů.
Pokud jste dočetli až sem, máte můj obdiv a děkuji Vám. Pokud Vás cokoliv dalšího zajímá, neváhejte mě kontaktovat. Rád se s Vámi sejdu u kávy.
Povinné údaje: 
 Jméno: Ondřej Špaček
 Místo podnikání: Červeného kříže 2433, 470 06 Česká Lípa
 IČO: 86816781, DIČ **0905****
Datová schránka: hwag7va
 Vznik živnostenského oprávnění: 22.4.2005
 Vznik vázané živnosti realitní zprostředkování: 9.3.2020
 Živnost přidělil: Městský úřad Česká Lípa
